Allea
Einfamilienhaus Allea
5 Zimmer, offene Küche, Diele, WC, Garderobe, Flur, Bad, Ankleide, Leseecke, Hauswirtschaftsraum
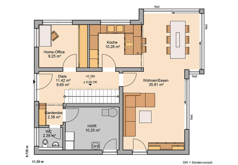
Highlight des Architektenhauses Allea ist der Wohn- und Essbereich. Durch drei große bodentiefe Schiebeelemente haben Sie einen herrlichen Rundumblick in Ihren Garten. Der Blick aus dem Haus in Ihren Garten wirkt einfach nur frei und offen. Architektonisch überzeugt dabei der Erker, in dem das Esszimmer untergebracht ist. Hieran grenzt die offene Küche, die auf Wunsch mit einem Tresen ausgestattet werden kann. Dadurch kann auch während des Kochens mit Gästen kommuniziert werden. Insgesamt umfassen Küche und Wohn-Essbereich mehr als 46 Quadratmeter. Im Erdgeschoss sind zudem ein Home-Office, eine Garderobe sowie ein WC untergebracht. Über eine geradläufige Treppe gelangen Sie ins Dachgeschoss. Besonders gemütlich ist die Leseecke. Hier können Sie bei einem schönen Buch sitzen und durch das bodentiefe Glaselement nach draußen in den Garten schauen und haben immer genügend Licht. Der Flur wird durch zwei bodentiefe Fensterelemente auf beiden Seiten des Hauses lichtdurchflutet. Vom Flur aus haben Sie Zugang in die Räume des Dachgeschosses. Die beiden Kinderzimmer sind mit rund 14 Quadratmetern gleich groß und großzügig. Hier findet ein Bett, ein Kleiderschrank und ein Schreibtisch bequem Platz. Durch zwei Fenster sind die Kinderzimmer ausreichend hell. Das Elternschlafzimmer verfügt über eine eigene Ankleide mit einem Wäscheschacht, der in den Hauswirtschaftsraum führt. So kommt Schmutzwäsche direkt dahin, wo sie hingehört: in die Nähe der Waschmaschine. Das Familienbadezimmer besitzt eine bodengleich geflieste Dusche, eine Badewanne und ist rund zehn Quadratmeter groß. Hingucker auf der Eingangsseite des Architektenhauses ist das große Fenster Element über der Tür, das den Flur im Dachgeschoss lichtdurchflutet.
Weitere Informationen
Netto Grundfläche (DIN 277): 153 m²
Anzahl Räume: 5
Dachbauart: Satteldach
Bauweise: Massivhaus
Ausführung: Einfamilienhaus
Komplettpreis: 430900 EUR
Edition 24
Energieeffizienzklasse A+ inklusive Bodenplatte, 3-Scheiben-Wärmeschutzverglasung und Rollläden,
5-Phasen-TÜV-Prüfung, Luft-Wasser-Wärmepumpe, Fußbodenheizung sowie einer kontrollierten Wohnraumlüftung mit Wärmerückgewinnung.
Jedes Haus wird individuell nach Ihren Wünschen geplant und ausgestattet.





