Enea
Bungalow Enea
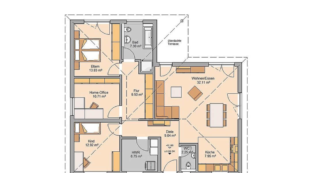
4 Zimmer, offene Küche, Diele, WC, Bad, Hauswirtschaftsraum, Flur
Bungalow Enea - optimales Architektenhaus auf einer Ebene für jede Lebenslage!
Eintreten und zu Hause fühlen! Nachdem Sie durch die Haustür getreten sind, befindet sich auf der rechten Seite ein Gäste-WC und direkt dahinter blicken Sie in den offenen Wohnbereich mit Esstisch und integrierter Küchenzeile - hier findet das tägliche Leben statt. Gemeinsam kochen, lesen und wohlfühlen. Oder auch spielen, ob mit eigenen Kindern oder mit Freunden beim Spieleabend. Bodentiefe Fenster öffnen den Bereich Richtung Garten und führen auf die überdachte Terrasse. Der Flur führt weiter zum Hauswirtschaftsraum und den anderen Räumen. Darunter ein Badezimmer, ein Elternschlafzimmer, ein Home-Office und ein Kinderzimmer, welches aber auch als Hobbyraum dienen kann. Die Zimmer können individuell genutzt werden - je nach Lebenslage.
Weitere Informationen
Netto Grundfläche (DIN 277): 112 m²
Anzahl Räume: 4
Dachbauart: Walmdach
Bauweise: Massivhaus
Ausführung: Bungalow
Komplettpreis: 368900 EUR
Edition 24
Energieeffizienzklasse A+ inklusive Bodenplatte, 3-Scheiben-Wärmeschutzverglasung und Rollläden,
5-Phasen-TÜV-Prüfung, Luft-Wasser-Wärmepumpe, Fußbodenheizung sowie einer kontrollierten Wohnraumlüftung mit Wärmerückgewinnung.
Jedes Haus wird individuell nach Ihren Wünschen geplant und ausgestattet.

