Linum
Doppelhaus Linum
Das Doppelhaus Linum ist ideal für schmal geschnittene Grundstücke. Und überzeugt zusätzlich mit einem modernen Exterieur im Bauhausstil.
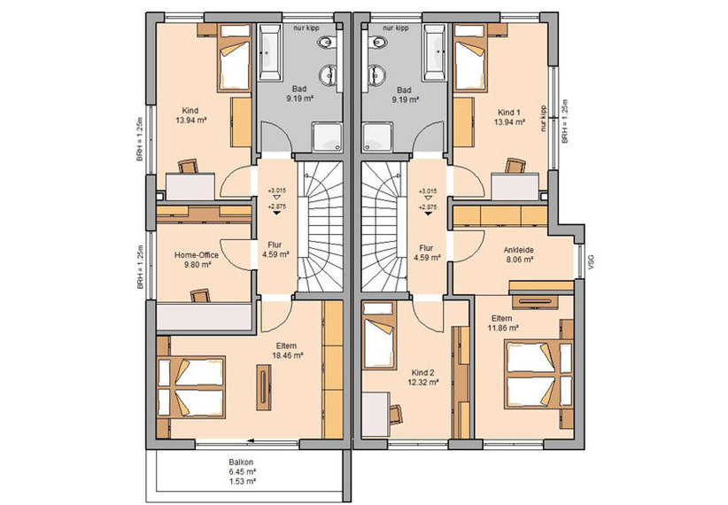
Durch einen überdachten Eingangsbereich gelangen Sie trockenen Fußes in Ihre moderne Doppelhaushälfte. Einkäufe können Sie direkt neben dem Eingang im Hauswirtschaftsraum oder im Abstellraum unterbringen. Highlight des Erdgeschosses ist die offene Raumkonzeption von der Küche hin in den Wohn- und Essbereich. In der rechten Doppelhaushälfte haben Sie zudem als architektonisches Highlight einen Erker, der die Küche und das Wohnzimmer vergrößert. Das Erdgeschoss wird komplettiert durch ein Gäste-WC im Eingangsbereich. Durch bodentiefe Fenster werden die Räume zur Gartenseite sowohl im Erd- als auch im Obergeschoss lichtdurchflutet. In der linken Doppelhaushälfte (Wohnfläche:112 Quadratmeter) sind im Obergeschoss ein Elternschlafzimmer, ein Kinderzimmer, ein Home-Office und ein Badezimmer untergebracht. Das Elternschlafzimmer verfügt über einen Zugang auf den Balkon. Die rechte Doppelhaushälfte ist mit 119 Quadratmetern etwas größer und umfasst zwei Kinderzimmer, ein Elternschlafzimmer mit Ankleide sowie ein Badezimmer.
Weitere Informationen
Netto Grundfläche (DIN 277): 122 m²
Anzahl Räume: 4
Dachbauart: Flachdach
Bauweise: Massivhaus
Ausführung: Doppelhaus
Komplettpreis: 409900 EUR
Edition 24
Energieeffizienzklasse A+ inklusive Bodenplatte, 3-Scheiben-Wärmeschutzverglasung und Rollläden,
5-Phasen-TÜV-Prüfung, Luft-Wasser-Wärmepumpe, Fußbodenheizung sowie einer kontrollierten Wohnraumlüftung mit Wärmerückgewinnung.
Jedes Haus wird individuell nach Ihren Wünschen geplant und ausgestattet.


