Lumio
Exklusives Wohnen im Modernen Walmdach-Mehrfamilienhaus
Wohneinheit 1: 3 Zimmer, offene Küche, Diele, Dusche, WC, Abstellraum, Terrasse - WE 1: ca. 108 m²
Wohneinheit 2: 3 Zimmer, offene Küche, Diele, Dusche, WC, Abstellraum, Balkon - WE 2: ca. 107 m²
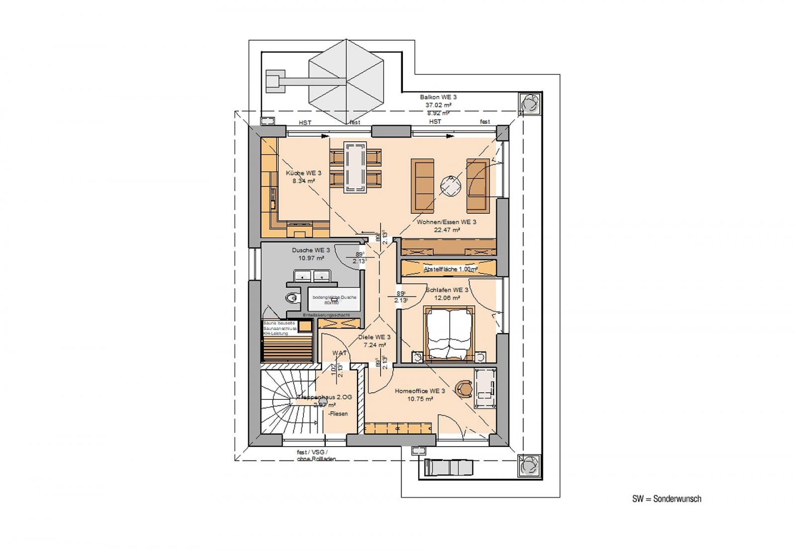
Wohneinheit 3: 3 Zimmer, offene Küche, Diele, Dusche, Balkon - WE 3: ca. 81 m²
Mehrfamilienhaus zum Wohlfühlen: eine Wohneinheit pro Etage!
Herzlich willkommen im Mehrfamilienhaus Lumio - einem beeindruckenden Architektenhaus, welches in der Außenansicht mit einer modernen Walmdach-Architektur und einem eleganten Erkeranbau in Klinkeroptik (optional) begeistert. Aber auch innen bietet das Haus den Bewohnern mit nur einer Wohneinheit pro Etage ein exklusives Wohnerlebnis und damit maximale Privatsphäre. Jede Wohneinheit überzeugt mit drei Zimmern und hellen sowie modernen Wohnräumen, die je nach Anforderungen der Bewohner individiduell genutzt werden können.
Weitere Informationen
Netto Grundfläche (DIN 277): 296 m²
Anzahl Räume: 3
Dachbauart: Walmdach
Bauweise: Massivhaus
Ausführung: Mehrfamilienhaus
Energieeffizienzklasse A+ inklusive Bodenplatte, 3-Scheiben-Wärmeschutzverglasung und Rollläden,
5-Phasen-TÜV-Prüfung, Luft-Wasser-Wärmepumpe, Fußbodenheizung sowie einer kontrollierten Wohnraumlüftung mit Wärmerückgewinnung.
Jedes Haus wird individuell nach Ihren Wünschen geplant und ausgestattet.




