Novum
Bauhaus Novum
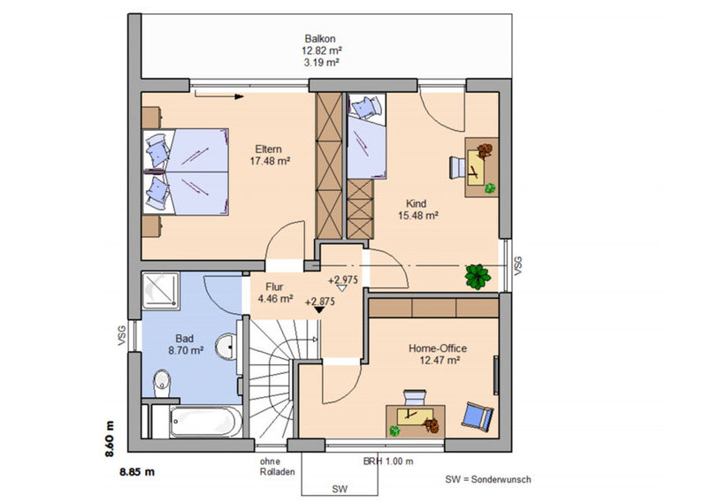
4 Zimmer, Küche, Diele, WC, Speisekammer, Flur, Bad, Hauswirtschaftsraum, Balkon.
Moderne Eleganz: Bauhaus Novum!
Edel und zeitlos präsentiert sich das Bauhaus Novum jedem, der Wert auf modernste Architektur legt. Der Design-Entwurf spricht eine klare und kompromisslose Formensprache. Schmale Fenster akzentuieren die Straßenseite. Gartenseitig schaffen die großen Fensterelemente einen fließenden Übergang von innen nach außen, von Wohnraum zu Balkon oder Terrasse. Das Flachdach wirkt schlicht auf der einen, und doch markant auf der anderen Seite des Hauses. Im modernen Inneren setzt sich das Hauskonzept fort. Helligkeit und klare Formen bestimmen das Ambiente. So wohnen Individualisten. Ein Highlight: Von allen Wohnräumen gelangt man direkt auf die Gartenterrasse oder den weitläufigen Balkon. Das Design-Badezimmer bietet Wellness und Entspannung pur.
Die zum Entwurf passende Doppelgarage mit Dachterrasse ergänzt das Haus auf Wunsch perfekt.
Weitere Informationen
Netto Grundfläche (DIN 277): 122 m²
Anzahl Räume: 4
Dachbauart: Flachdach mit umlaufender Attika
Bauweise: Massivhaus
Ausführung: Einfamilienhaus
Komplettpreis: 366900 EUR
Edition 24
Energieeffizienzklasse A+ inklusive Bodenplatte, 3-Scheiben-Wärmeschutzverglasung und Rollläden,
5-Phasen-TÜV-Prüfung, Luft-Wasser-Wärmepumpe, Fußbodenheizung sowie einer kontrollierten Wohnraumlüftung mit Wärmerückgewinnung.
Jedes Haus wird individuell nach Ihren Wünschen geplant und ausgestattet.


