Perfect 125S
Bungalow Perfect 125S
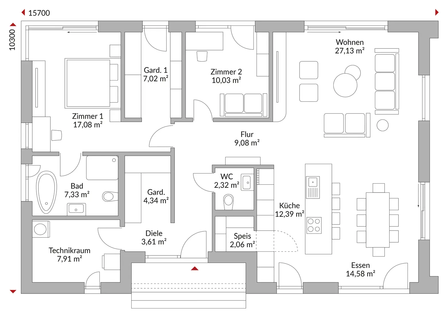
Das Perfect 125 S verbindet das entspannte Wohnen auf einer Ebene mit dem charakteristischen Auftritt der S-Linie. Schon außen wirkt das Haus wie aus einem Guss: klare Linien, moderne Traufe, präzise Details, dazu großzügige Glasflächen, die den Garten sichtbar in den Alltag holen.
Innen zeigt sich der Unterschied im Raumgefühl: ein höheres Erdgeschoss schafft spürbar mehr Luft über dem Kopf, höhere Türen und eine erhöhte Fenster- und Außentürhöhe unterstreichen die Wertigkeit in jedem Durchgang.
Wohnen und Essen sind offen und hell zoniert, die Küche bleibt als offener Arbeitsbereich angenehm sortiert und wird durch eine Speisekammer ergänzt.
Zwei Zimmer geben Freiheit für Schlafen, Arbeiten oder Gäste. Wannenbad mit freistehender Badewanne und Dusche sowie ein separates WC schaffen Wellness-Routinen.
Technikraum, Diele, Flur und zwei Garderobenbereiche halten den Wohnraum frei, weil alles seinen Platz bekommt.
Typisch S-Linie sind außerdem die Eckverglasungen, in diesem Falle im Schlafzimmer und höhere Terrassenschiebetüren als ruhige, großzügige Verbindung nach draußen, ergänzt durch eine stärkere Wärmedämmung für ein souveränes Wohnklima.
Weitere Informationen
Netto Grundfläche (DIN 277): 124,88 m²
Anzahl Räume: 3
Dachbauart: Satteldach
Bauweise: Fertighaus
Ausführung: Bungalow
Komplettpreis: 318500 EUR
SCHLÜSSELFERTIG
inklusive Maler, Fliesen, Sanitär, Vinyl, Laminat, elektrischen Rollläden und Technikpaket (Luft-Wasser-Wärmepumpe + Fußbodenheizung + zentrale Lüftungsanlage mit Wärmerückgewinnung) ab Oberkante Bodenplatte
*Abbildungen zeigen teilweise individuelle Zusatzausstattung.
KfW-Effizienzhaus 40




