Point 138
Einfamilienhaus Point 138
Das Point 138 nutzt seine kompakte Grundfläche so clever, dass sich der Alltag immer großzügig anfühlt. Der Mittelpunkt ist offen und großzügig: Wohnen und Essen gehen fließend ineinander über, die Küche mit Insel liegt mittendrin und nicht „irgendwo daneben“, sondern da, wo Gespräche entstehen und der Alltag stattfindet.
Gleichzeitig bleibt alles aufgeräumt: Die große Diele fängt Jacken, Taschen und Schuhe ab, WC und Technikraum sind praktisch platziert, ohne dem Wohnen Raum zu nehmen.
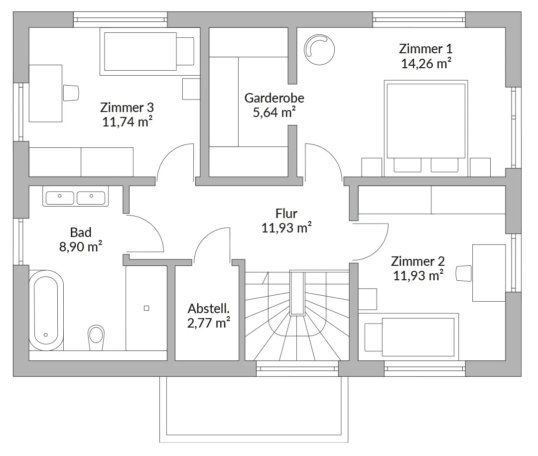
Oben setzt sich das Prinzip fort: drei Zimmer, die mitwachsen, dazu eine begehbare Ankleide im Schlafzimmer und Abstellraum, damit Wäschekörbe, Koffer und Saisonales nicht im Blick bleiben.
Ein Familienbad mit Doppelwachtisch, Badewanne und Dusche rundet das Obergeschoss als ruhigen Rückzugsbereich ab.
Weitere Informationen
Netto Grundfläche (DIN 277): 138,13 m²
Anzahl Räume: 4
Dachbauart: Satteldach
Bauweise: Fertighaus
Ausführung: Einfamilienhaus
Komplettpreis: 307400 EUR
SCHLÜSSELFERTIG
inklusive Maler, Fliesen, Sanitär, Vinyl, Laminat, elektrischen Rollläden und Technikpaket (Luft-Wasser-Wärmepumpe + Fußbodenheizung + zentrale Lüftungsanlage mit Wärmerückgewinnung) ab Oberkante Bodenplatte
*Abbildungen zeigen teilweise individuelle Zusatzausstattung.
KfW-Effizienzhaus 40




