Point 141.1
Einfamilienhaus Point 141.1
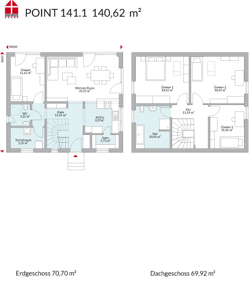
Eineinhalbgeschossiges Haus mit 5 Zimmern, offener Küche, Speisekammer, Bad, Gäste-WC, Diele, Flur und Technikraum. Satteldach mit 40° Dachneigung, Kniestock 0,75 m.
Familienfreundlich
Außen schön schlicht, innen hell und familienfreundlich. Point 141.1 bietet einen nicht zu offenen Wohn-/Essbereich, an den sich auch leicht zurückgezogene Küche mit der Speisekammer anschließt. Gäste-WC (optional mit Dusche), Technikraum und ein Zimmer ergänzen das Raumangebot im Erdgeschoss. Eine Nische in der Diele nimmt die Outdoor-Kleidung auf, und unter der Treppe ist ausreichend Platz für die Schuhe und Taschen oder sogar für den Kinderwagen. Eine Etage darüber gibt es zwei große und ein kleines Zimmer und das großzügige Familienbad.
Weitere Informationen
Netto Grundfläche (DIN 277): 140,62 m²
Anzahl Räume: 5
Dachbauart: Satteldach
Bauweise: Fertighaus
Ausführung: Einfamilienhaus
Komplettpreis: 283100 EUR
SCHLÜSSELFERTIG
inklusive Maler, Fliesen, Sanitär, Vinyl, Laminat, elektrischen Rollläden und Technikpaket (Luft-Wasser-Wärmepumpe + Fußbodenheizung + zentrale Lüftungsanlage mit Wärmerückgewinnung) ab Oberkante Bodenplatte
*Abbildungen zeigen teilweise individuelle Zusatzausstattung.

