Point 157
Einfamilienhaus Point 157
Point 157 zeigt sich elegant und wohlproportioniert: Satteldach, geschützter Eingang, große Fensterflächen, dazu der kleine Balkon über der Eingangstür als raffiniertes Detail. Innen beginnt es mit einer großzügigen Diele, die Jacken, Taschen und Schulranzen entspannt auffängt. Das Studio liegt gleich daneben: ideal als Homeoffice, Gästezimmer oder Rückzugsraum, wenn der Alltag einmal leiser werden soll.
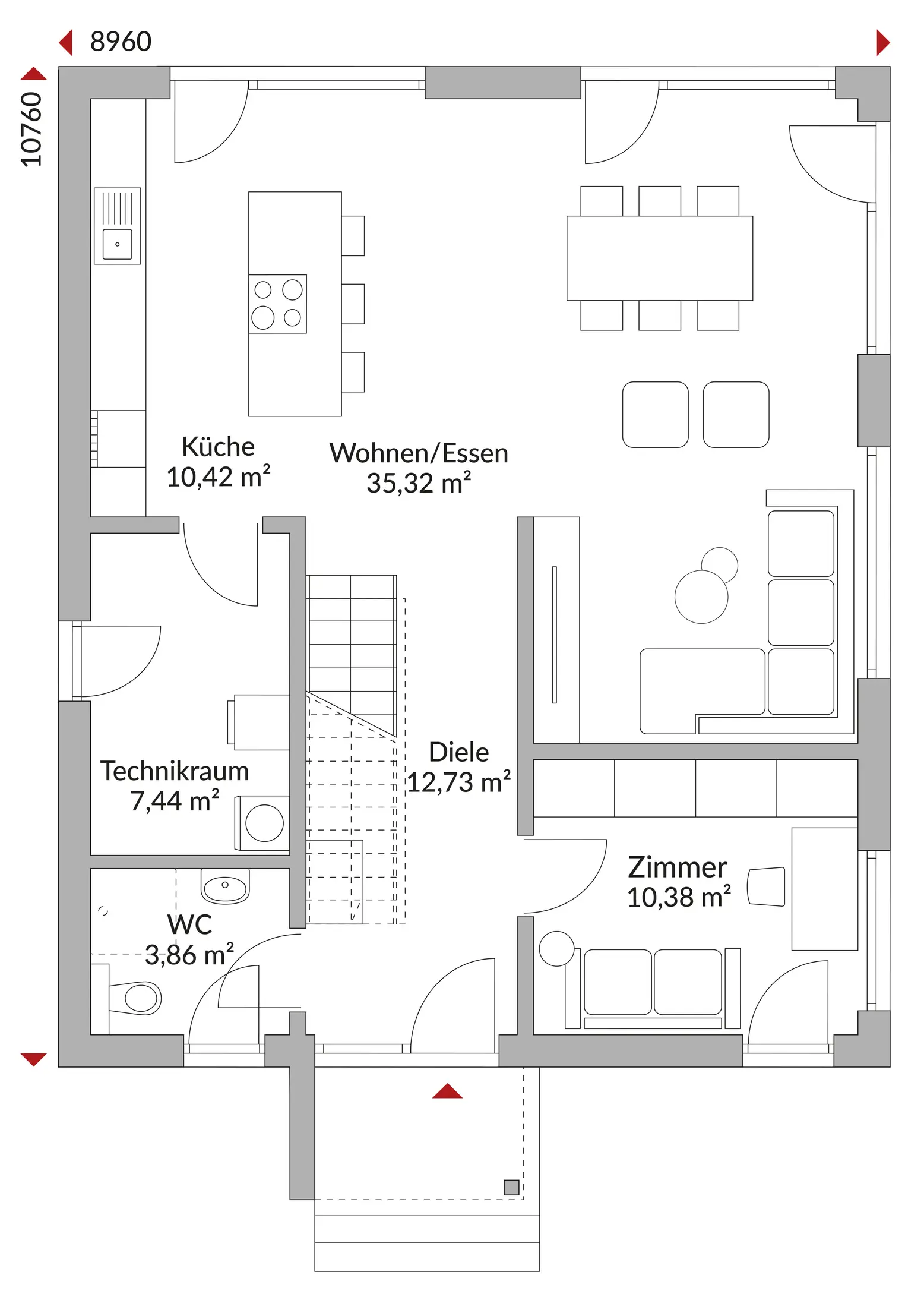
Herzstück im Erdgeschoss ist der offen geplante Bereich aus Wohnen und Essen mit 35,32 m²: hier ist Platz für lange Tischrunden, Spielzeug auf dem Boden und trotzdem genügend Luft im Raum. Die Küche ist direkt angebunden und bleibt mit ihrer eigenen Zone angenehm „bei sich“. Praktisch im Hintergrund: Technikraum und separates WC, genau dort, wo sie gebraucht werden. Oben verteilt sich das Familienleben auf vier Zimmer – vom Elternzimmer bis zum Kinderzimmer, Hobbyraum oder Ankleide-Plus. Das große Bad sorgt für entspanntere Morgen, der breite Flur nimmt Bewegung auf, ohne Enge zu erzeugen.
Weitere Informationen
Netto Grundfläche (DIN 277): 157,22 m²
Anzahl Räume: 5
Dachbauart: Satteldach
Bauweise: Fertighaus
Ausführung: Einfamilienhaus
Komplettpreis: 318200 EUR
SCHLÜSSELFERTIG
inklusive Maler, Fliesen, Sanitär, Vinyl, Laminat, elektrischen Rollläden und Technikpaket (Luft-Wasser-Wärmepumpe + Fußbodenheizung + zentrale Lüftungsanlage mit Wärmerückgewinnung) ab Oberkante Bodenplatte
*Abbildungen zeigen teilweise individuelle Zusatzausstattung.
KfW-Effizienzhaus 40




