Purea
Bungalow Purea
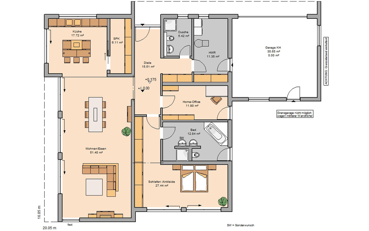
3 Zimmer, offene Küche, Diele, Bad, Dusche, Hauswirtschaftsraum, Speisekammer, Doppelgarage
Der klar strukturierte Grundriss des Bungalows ermöglicht großzügiges und offenes Wohnen auf einer Ebene. Wer zur Haustür eintritt, findet sich in einer geräumigen Diele mit großer Garderobenfläche wieder. Linkerhand befindet sich ein Gäste-WC mit Dusche und der Zugang zum Hauswirtschaftsraum. Dahinter ein Home-Office, das auch als Gästezimmer genutzt werden kann. Der eigene Zugang zum Garten bietet einen besonderen Nutzen. Am Ende des Flurs befindet sich das Schlafzimmer. Seine bodentiefen Fenster ermöglichen den freien Blick ins Grüne - direkt aus dem Bett. Das Badezimmer mit Wellness-Ausstattung kann direkt aus dem Schlafzimmer betreten werden.
Der rechte Teil des Bungalows, der rund 75 Quadratmeter umfasst, beherbergt einen großzügigen Wohn-Essbereich mit offener Küche. Ganz im Stil einer modernen Küche berücksichtigt der Entwurf viel Platz für eine große Kochinsel. In der direkt angrenzenden, großen Speisekammer können die Vorräte für gemeinsame kulinarische Abende mit Freunden und Familie gelagert werden. Im lichtdurchflutete Wohn- und Essbereich findet das Leben statt: Fernsehen und Musik hören, bei Kaffee oder Tee entspannt ein Buch lesen oder einfach nur den Blick durch die großen Schiebetüren nach Draußen schweifen lassen...
In den Hausentwurf integriert ist eine praktische Doppelgarage. Die Garage ist mit zwei Tageslicht-Fenstern und einer Zugangstür zum Garten ausgestattet. So können in der Garage verstaute Gartengeräte ganz einfach verwendet werden. Als praktisch erweist sich die Verbindungstür von Doppelgarage zum Hauswirtschaftsraum, was sich besonders beim Ausladen der Einkäufe als hilfreich erweist.
Weitere Informationen
Netto Grundfläche (DIN 277): 159 m²
Anzahl Räume: 3
Dachbauart: Flachdach mit umlaufender Attika
Bauweise: Massivhaus
Ausführung: Bungalow
Energieeffizienzklasse A+ inklusive Bodenplatte, 3-Scheiben-Wärmeschutzverglasung und Rollläden,
5-Phasen-TÜV-Prüfung, Luft-Wasser-Wärmepumpe, Fußbodenheizung sowie einer kontrollierten Wohnraumlüftung mit Wärmerückgewinnung.
Jedes Haus wird individuell nach Ihren Wünschen geplant und ausgestattet.





