Puro
Bauhaus Puro
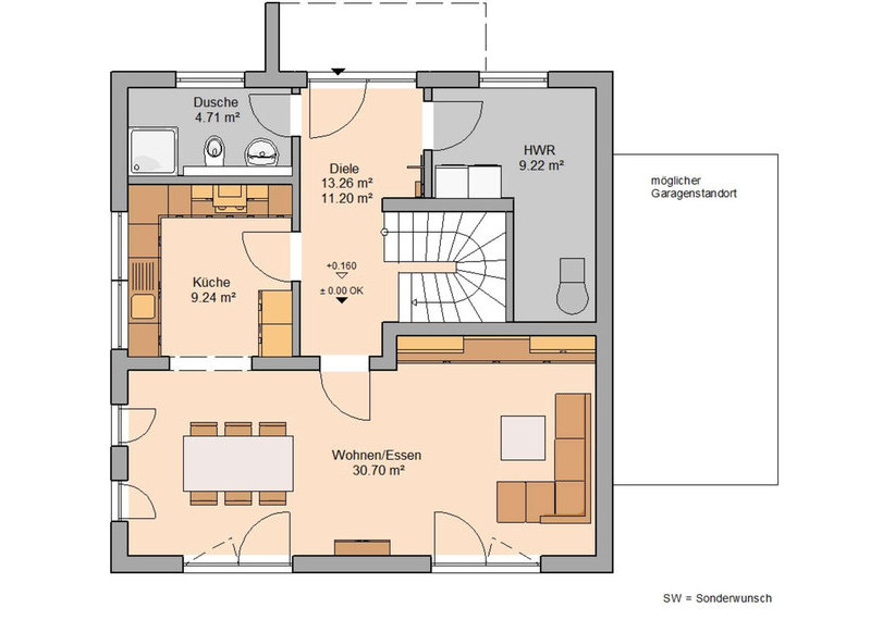
4 Zimmer, offene Küche, Diele, Dusche, Flur, Bad, Hauswirtschaftsraum, Ankleide
Bereits wenn Sie das Bauhaus Puro betreten, erwartet Sie ein modernes Wohnambiente. Die großzügige Diele erscheint durch Glaselemente an der Haustür hell und freundlich. Von der Diele aus erreichen Sie den Hauswirtschaftsraum sowie das praktische Duschbad. Zudem ermöglicht die Diele den Zugang zum 30 Quadratmeter großen Wohn- und Essbereich. Die bodentiefen Fenster erfüllen den Raum mit natürlichem Tageslicht. Die Küche bietet ausreichend Platz für die Zubereitung von leckeren Speisen für die ganze Familie. Die u-förmige Treppe führt ins Obergeschoss und mündet in einen kleinen Flur, von dem alle Räume in der oberen Etage erreicht werden können. Die beiden Kinderzimmer bieten mit jeweils rund 14 Quadratmetern viel Platz für den Nachwuchs - ein Kinderzimmer ist zur Eingangsseite gerichtet, das andere mit einem bodentiefen Fensterelement zur Gartenseite. Das Elternschlafzimmer wird ebenfalls durch bodentiefe Fenster lichtdurchflutet und bietet angrenzend eine Ankleide. Das Familienbadezimmer verfügt über eine große, bodengleich geflieste Dusche, einen Doppelwaschtisch (auf Sonderwunsch) sowie eine Badewanne.
Weitere Informationen
Netto Grundfläche (DIN 277): 128 m²
Anzahl Räume: 4
Dachbauart: Flachdach
Bauweise: Massivhaus
Ausführung: Einfamilienhaus
Komplettpreis: 387900 EUR
Edition 24
Energieeffizienzklasse A+ inklusive Bodenplatte, 3-Scheiben-Wärmeschutzverglasung und Rollläden,
5-Phasen-TÜV-Prüfung, Luft-Wasser-Wärmepumpe, Fußbodenheizung sowie einer kontrollierten Wohnraumlüftung mit Wärmerückgewinnung.
Jedes Haus wird individuell nach Ihren Wünschen geplant und ausgestattet.


