View
Doppelhaus View
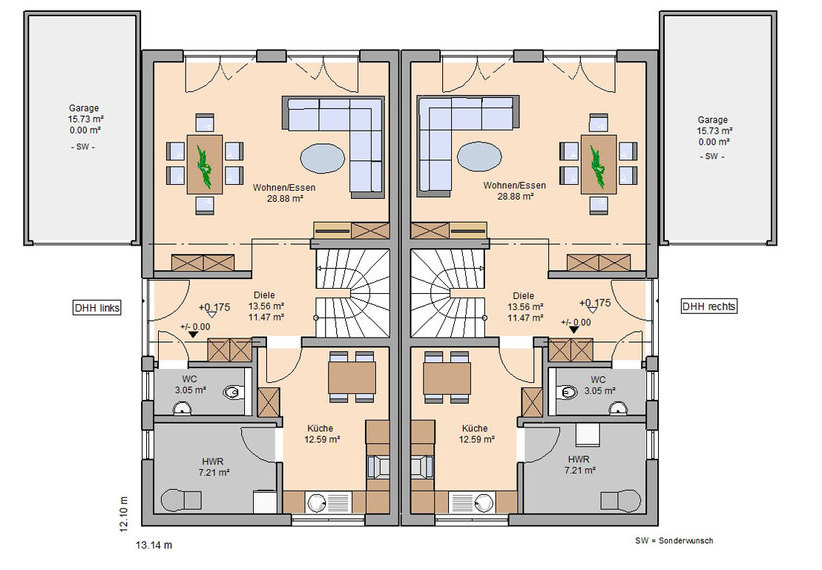
4 Zimmer, Küche, Diele, WC, 2 Flure, 2 Bäder, Ankleide, Dachterrasse, Hauswirtschaftsraum
Moderne im doppelten Sinne. Dieses außergewöhnliche Architektenhaus punktet mit einer raffinierten Raumaufteilung gleich doppelt! Das Haus ist durch seine Bauweise ein Blickfang in jedem Baugebiet und als Doppelhaus auf den ersten Blick kaum zu erkennen.
Das Erdgeschoss bietet einen angenehmen Platz für das alltägliche Leben - sowohl für eine 4-köpfige Familie als auch für Paare. Die bodentiefen Fenster spenden viel Tageslicht und bieten ein angenehmes Raumklima. Im Obergeschoss spiegelt sich diese Freundlichkeit in den beiden Räumen wieder, die als Kinder- oder Gästezimmer, aber auch als Home-Office genutzt werden können. Ein eigenes Badezimmer für die Kinder oder Gäste ist ebenfalls vorhanden. Das Dachgeschoss lässt keine Wünsche offen - neben dem großen Schlafbereich gibt es ein eigenes Badezimmer für diese Etage sowie einen Ankleidebereich. Vom Bett aus kann der Hausherr schon am frühen Morgen die Sonne genießen, denn dieses Dachgeschoss bietet einen herrlichen Blick auf die Dachterrasse. Der Bauherr kann sich zwischen einer Holz- oder Putz-Außenfassade entscheiden.
Weitere Informationen
Netto Grundfläche (DIN 277): 170 m²
Anzahl Räume: 4
Dachbauart: Pultdach
Bauweise: Massivhaus
Ausführung: Doppelhaus
Komplettpreis: 551900 EUR
Edition 24
Energieeffizienzklasse A+ inklusive Bodenplatte, 3-Scheiben-Wärmeschutzverglasung und Rollläden,
5-Phasen-TÜV-Prüfung, Luft-Wasser-Wärmepumpe, Fußbodenheizung sowie einer kontrollierten Wohnraumlüftung mit Wärmerückgewinnung.
Jedes Haus wird individuell nach Ihren Wünschen geplant und ausgestattet.



